FDP fordert den Erhalt der Naturbrücke zwischen Wennsee und Kammerwald
Reporter Timmendorf
506
Scharbeutz. Im Ortskern von Scharbeutz wurden in den letzten Jahren neue Baugebiete erschlossen. „Diese Baugebiete, wie Marderwinkel, Devkoppel, Hofwiesen, Redderkrog, weisen eine durchschnittliche Wohnbebauungsdichte von zirka 14 Wohneinheiten je Hektar (WE/ha) auf,“ wie die FDP Scharbeutz in einer Pressemitteilung schreibt. „Im Ortskern von Scharbeutz gibt es heute nur ein letztes Baugebiet, das laut Baurecht erschlossen werden kann, nämlich das Gebiet ,Scharrstücken‘.“
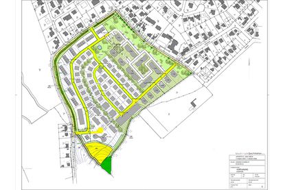
Der jetzige Stand der Planung sieht eine Bebauungsdichte von zirka 38 WE/ha (340 Wohneinheiten) auf insgesamt zirka 9,6 Hektar vor. Das entspricht im Vergleich zu den bisherigen Bebauungen einer Verdreifachung der Bebauungsdichte, wie die FDP mitteilt. Neben der landwirtschaftlichen Fläche von Zirka 5,6 Hektar, die bereits als Wohnfläche ausgewiesen ist, wird in die Planung eine zirka 4 Hektar große Grünfläche (Grünzug) einbezogen.
„Grünzüge können laut Landesentwicklungsplan nicht bebaut werden. Es sind geschützte Gebiete,“ heißt es in der Pressemitteilung weiter. „Ausnahmen können bewirkt werden für Bauten mit übergeordnetem öffentlichem Interesse. Und so findet sich in der aktuellen Planung ein dringender Bedarf für eine dritte Kindertagesstätte im Ortskern und ein zweites Seniorenpflegeheim im zu schützenden Grünzug. Obwohl die südliche Hanglage mit enger Zulieferstraße für diese Einrichtungen mit täglichem Lieferverkehr und starken privaten Personenverkehr nicht geeignet ist.“ Auf „reporter“-Nachfrage bei der Gemeinde sagt das vorliegende Verkehrsgutachten allerdings etwas anderes.
Die FDP Scharbeutz schreibt dazu: „Dem zum Trotz, hat sich die Mehrheit der Gemeindevertretung im Bauausschuss für die massive Bebauung auch dieser (Grün-)fläche mit insgesamt mindestens 340 Wohneinheiten ausgesprochen.“
Die FDP Scharbeutz spricht sich für eine verträgliche Lösung aus: „Wir müssen sehr sorgsam mit den Umweltressourcen unseres Ortes umgehen“, betont FDP-Ortsvorsitzende Dr. Stephanie Gamm. „Das Gebiet Scharrstücken liegt zwischen dem Wennsee und dem Kammerwald. Im unteren Bereich der Fläche muss der Grünzug unbedingt als ,Naturbrücke‘ erhalten bleiben. Diese Fläche zu opfern, wäre Raubbau an der Natur. Experten aus Umweltschutz/Forst/Boden/Entwässerung warnen vor einer Versiegelung des in den Landesplänen vorgesehenen Grünzuges. Der Grünkorridor muss erhalten werden, um das ökologisch wertvolle Gebiet zu erhalten. Die hier lebenden Amphibien, wie Lurche, wechseln vom Sommerquartier am Wennsee in ihr Winterquartier im Kammerwald. Die Bebauung am unteren Feldrand würde diesen Wanderkorridor versperren und den Tieren ihren Lebensraum nehmen. Scharbeutz wäre um diese Arten ärmer.“
Abschließend heißt es: „Wir fordern die politischen Parteien in der Gemeindevertretung auf, sich für eine verträgliche Bebauung von maximal 14 Wohneinheiten/Hektar auf maximal 6 Hektar im Scharrstücken auszusprechen. Die Grünfläche muss erhalten bleiben. Zudem sollte die Gemeinde einen gedämpften Mietpreis von maximal 13,50 Euro/m² indexiert durchsetzen und eine grundbuchliche Verpflichtung zum Nachweis des Erstwohnsitzes der zukünftigen Bewohner. Denn wir brauchen Wohnungen mit Langzeitmietvertrag und keine Zweitwohnungen.“ (rk)
Der jetzige Stand der Planung sieht eine Bebauungsdichte von zirka 38 WE/ha (340 Wohneinheiten) auf insgesamt zirka 9,6 Hektar vor. Das entspricht im Vergleich zu den bisherigen Bebauungen einer Verdreifachung der Bebauungsdichte, wie die FDP mitteilt. Neben der landwirtschaftlichen Fläche von Zirka 5,6 Hektar, die bereits als Wohnfläche ausgewiesen ist, wird in die Planung eine zirka 4 Hektar große Grünfläche (Grünzug) einbezogen.
„Grünzüge können laut Landesentwicklungsplan nicht bebaut werden. Es sind geschützte Gebiete,“ heißt es in der Pressemitteilung weiter. „Ausnahmen können bewirkt werden für Bauten mit übergeordnetem öffentlichem Interesse. Und so findet sich in der aktuellen Planung ein dringender Bedarf für eine dritte Kindertagesstätte im Ortskern und ein zweites Seniorenpflegeheim im zu schützenden Grünzug. Obwohl die südliche Hanglage mit enger Zulieferstraße für diese Einrichtungen mit täglichem Lieferverkehr und starken privaten Personenverkehr nicht geeignet ist.“ Auf „reporter“-Nachfrage bei der Gemeinde sagt das vorliegende Verkehrsgutachten allerdings etwas anderes.
Die FDP Scharbeutz schreibt dazu: „Dem zum Trotz, hat sich die Mehrheit der Gemeindevertretung im Bauausschuss für die massive Bebauung auch dieser (Grün-)fläche mit insgesamt mindestens 340 Wohneinheiten ausgesprochen.“
Die FDP Scharbeutz spricht sich für eine verträgliche Lösung aus: „Wir müssen sehr sorgsam mit den Umweltressourcen unseres Ortes umgehen“, betont FDP-Ortsvorsitzende Dr. Stephanie Gamm. „Das Gebiet Scharrstücken liegt zwischen dem Wennsee und dem Kammerwald. Im unteren Bereich der Fläche muss der Grünzug unbedingt als ,Naturbrücke‘ erhalten bleiben. Diese Fläche zu opfern, wäre Raubbau an der Natur. Experten aus Umweltschutz/Forst/Boden/Entwässerung warnen vor einer Versiegelung des in den Landesplänen vorgesehenen Grünzuges. Der Grünkorridor muss erhalten werden, um das ökologisch wertvolle Gebiet zu erhalten. Die hier lebenden Amphibien, wie Lurche, wechseln vom Sommerquartier am Wennsee in ihr Winterquartier im Kammerwald. Die Bebauung am unteren Feldrand würde diesen Wanderkorridor versperren und den Tieren ihren Lebensraum nehmen. Scharbeutz wäre um diese Arten ärmer.“
Abschließend heißt es: „Wir fordern die politischen Parteien in der Gemeindevertretung auf, sich für eine verträgliche Bebauung von maximal 14 Wohneinheiten/Hektar auf maximal 6 Hektar im Scharrstücken auszusprechen. Die Grünfläche muss erhalten bleiben. Zudem sollte die Gemeinde einen gedämpften Mietpreis von maximal 13,50 Euro/m² indexiert durchsetzen und eine grundbuchliche Verpflichtung zum Nachweis des Erstwohnsitzes der zukünftigen Bewohner. Denn wir brauchen Wohnungen mit Langzeitmietvertrag und keine Zweitwohnungen.“ (rk)

